902 N 11th Ave E Ave, Duluth, MN 55805 (MLS # 6124163)
|
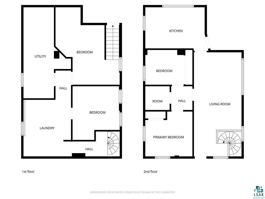
Conviently located close to Chester Park, UMD, St. Scholastica, and Downtown, this is an excellent opportunity for both investors and owner-occupants. This well-designed duplex offers flexible living arrangements and solid rental potential. Unit 1 spans the main level and basement, offering an impressive 4 bedrooms and 1 full bath. The main level features a bright living room, kitchen, full bath, and two comfortable bedrooms. A spiral staircase leads to the lower level, where you'll find two additional bedrooms"”both with egress windows"”along with a laundry area and a utility room providing ample storage. Unit 2 is located on the upper level and offers a cozy and efficient layout with 1 bedroom, 1 bath, a living space, and kitchen"”perfect for rental income or a private owner-occupant setup. Whether you're looking to live in one unit and rent the other, or expand your investment portfolio, this property offers flexibility, space, and opportunity. A smart investment with room to grow"”don't miss your chance to make it yours.
| DAYS ON MARKET | 2 | LAST UPDATED | 3/23/2026 |
|---|---|---|---|
| YEAR BUILT | 1914 | COMMUNITY | LSAR |
| COUNTY | St. Louis County | STATUS | Active |
| PROPERTY TYPE(S) | Multi Family |
| ADDITIONAL DETAILS | |
| AREA | LSAR |
|---|---|
| BASEMENT | Full, Partially Finished, Storage Space, Yes |
| HEAT | Radiant |
| LOT | 2614 sq ft |
| LOT DIMENSIONS | 35x75 |
| PARKING | None |
| SEWER | Public Sewer |
| STORIES | 2 |
| TAXES | 3182 |
| WATER | Public |
MORTGAGE CALCULATOR
TOTAL MONTHLY PAYMENT
0
P
I
*Estimate only
| SATELLITE VIEW |
| / | |
We respect your online privacy and will never spam you. By submitting this form with your telephone number
you are consenting for Real Estate Services
of Duluth to contact you even if your name is on a Federal or State
"Do not call List".
Listed with RE/MAX Results
Information is supplied by seller and other third parties and has not been verified. Open House information is subject to change without notice.
Copyright 2026 – Duluth Area Association of REALTORS® MLS – All Rights Reserved.
This IDX solution is (c) Diverse Solutions 2026.

