1524 W Arrowhead Rd, Duluth, MN 55811 (MLS # 6123521)
|
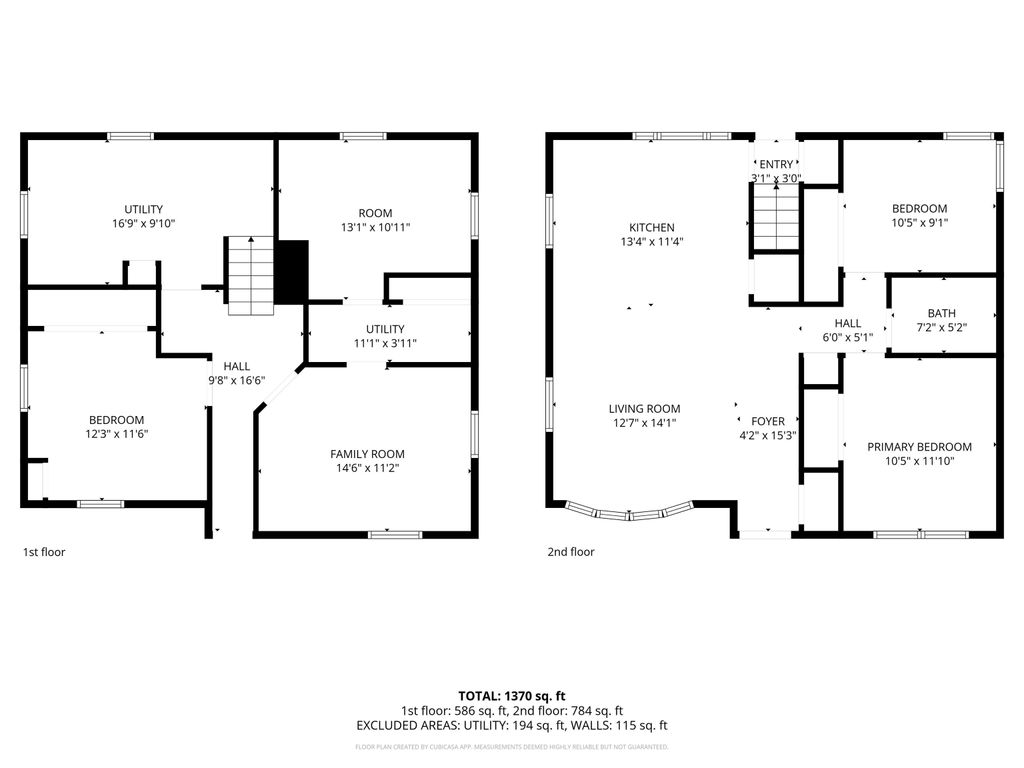
Well-maintained ranch-style home offering recent updates and a practical, inviting layout. The main level features a beautifully updated kitchen with quartz countertops, refreshed cabinetry, and modern finishes, along with remodeled bathroom spaces and the ease of main-floor living. Four bedrooms and a full bath provide comfortable everyday functionality. The full basement adds valuable finished space, including a family room and versatile bonus areas ideal for storage, hobbies, or future expansion. Set on a generous lot with a spacious backyard and a detached one-car garage, this property delivers both convenience and plenty of room to enjoy the outdoors.
| DAYS ON MARKET | 51 | LAST UPDATED | 2/5/2026 |
|---|---|---|---|
| YEAR BUILT | 1955 | COMMUNITY | LSAR |
| GARAGE SPACES | 1.0 | COUNTY | St. Louis County |
| STATUS | Pending | PROPERTY TYPE(S) | Single Family |
| ADDITIONAL DETAILS | |
| AREA | LSAR |
|---|---|
| BASEMENT | Full, Yes |
| GARAGE | Yes |
| HEAT | Forced Air, Natural Gas |
| INTERIOR | Master Downstairs |
| LOT | 9583 sq ft |
| LOT DIMENSIONS | 75 x 125 |
| PARKING | Detached |
| SEWER | Public Sewer |
| STORIES | 2 |
| STYLE | Ranch |
| TAXES | 2597 |
| WATER | Public |
MORTGAGE CALCULATOR
TOTAL MONTHLY PAYMENT
0
P
I
*Estimate only
| SATELLITE VIEW |
| / | |
We respect your online privacy and will never spam you. By submitting this form with your telephone number
you are consenting for Real Estate Services
of Duluth to contact you even if your name is on a Federal or State
"Do not call List".
Listed with RE/MAX Results
Information is supplied by seller and other third parties and has not been verified. Open House information is subject to change without notice.
Copyright 2026 – Duluth Area Association of REALTORS® MLS – All Rights Reserved.
This IDX solution is (c) Diverse Solutions 2026.

