417 Elk St, Duluth, MN 55804 (MLS # 6123358)
|
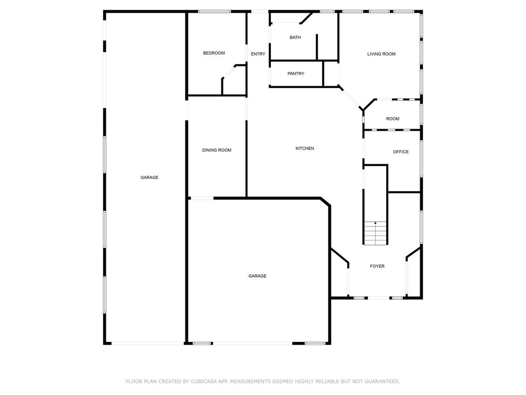
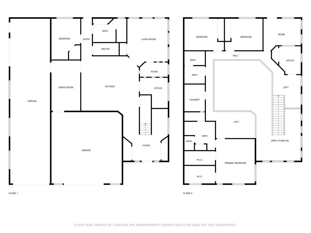
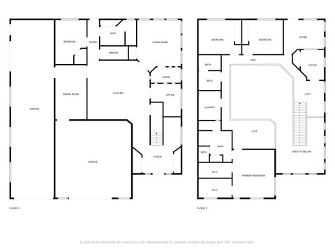
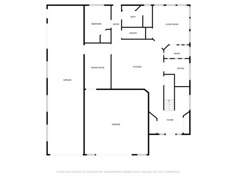
New construction on 2 private acres in desirable rural East Duluth, offering over 3500 sq ft of modern design and high-end finishes. The home features 5 bedrooms, including a main-floor guest room and an impressive upper-level master suite with two walk-in closets. The spa-like master bath boasts a linen closet, water closet, double vanity, soaker/bubbler tub, and a walk-in tile shower with color-changing lights, music, wall jets, and rain-head shower. Two additional bedrooms share a full bath, while a fourth connects to a versatile office/studio with an exterior door to a future balcony. The living room is flooded with natural light through the surrounding windows. All baths feature rain-head showers and heated/lit mirrors. The upper level offers a laundry room with a ventless washer/dryer and a laundry drop from both baths. Nearly all lighting is dimmable, temp-adjustable LED. Ethernet wiring is in place for the living room, master, office, and an adjacent bedroom. The gourmet kitchen is the heart of the home, with black stone counters, black cabinetry, slide-out storage, dimmable under-cabinet lighting, massive island with pop-up outlets and cabinetry below, with kitchen seating as well, double wall oven, flexible fridge, Full wall of pantry cabinetry and walk-in pantry, it has it all. Outdoors; a large patio, hot tub setup, roughed-in electrical for an existing 12x12 outbuilding, and space ready for your landscaping vision. Built slab-on-grade, the main floor features An attached 26x26 heated/insulated garage leads to a flex mudroom space, connecting to another 15x60 heated garage with a 12-ft door, RV hookup, and side access. Load bearing walls are laid out in such a way that future alteration or customization of the floor-plan is accessible. With customization from top to bottom, EVERYONE will find something to adore in this one of a kind home.
| DAYS ON MARKET | 61 | LAST UPDATED | 1/15/2026 |
|---|---|---|---|
| YEAR BUILT | 2024 | COMMUNITY | LSAR |
| GARAGE SPACES | 4.0 | COUNTY | St. Louis County |
| STATUS | Active | PROPERTY TYPE(S) | Single Family |
| ADDITIONAL DETAILS | |
| AIR | Central Air |
|---|---|
| AIR CONDITIONING | Yes |
| APPLIANCES | Cooktop, Dishwasher, Dryer, Exhaust Fan, Freezer, Microwave, Oven, Refrigerator, Washer |
| AREA | LSAR |
| CONSTRUCTION | Other |
| GARAGE | Yes |
| HEAT | Forced Air, Hot Water, Natural Gas |
| INTERIOR | Breakfast Bar, Eat-In Kitchen, High Speed Internet, Kitchen Island, Master Downstairs, Pantry, Walk-In Closet(s) |
| LOT | 1.97 acre(s) |
| LOT DESCRIPTION | Irregular Lot |
| LOT DIMENSIONS | 360x595 Irreg |
| PARKING | Off Street, Concrete, Garage Door Opener, RV Access/Parking, Attached |
| SEWER | Private Sewer, Mound Septic |
| STORIES | 2 |
| STYLE | Multi-level |
| TAXES | 6942 |
| WATER | Private, Well |
MORTGAGE CALCULATOR
TOTAL MONTHLY PAYMENT
0
P
I
*Estimate only
| SATELLITE VIEW |
| / | |
We respect your online privacy and will never spam you. By submitting this form with your telephone number
you are consenting for Real Estate Services
of Duluth to contact you even if your name is on a Federal or State
"Do not call List".
Listed with Coldwell Banker Realty - Duluth
Information is supplied by seller and other third parties and has not been verified. Open House information is subject to change without notice.
Copyright 2026 – Duluth Area Association of REALTORS® MLS – All Rights Reserved.
This IDX solution is (c) Diverse Solutions 2026.

