2893 Hutchinson Rd, Duluth, MN 55811 (MLS # 6123182)
|
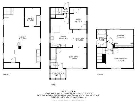
Welcome to 2893 Hutchinson Road! This three-bedroom home offers comfort, charm, and a lot of convenience. Set on a scenic lot in the Piedmont area, this property provides a peaceful setting while remaining conveniently close to shopping, restaurants, schools, trails, and main thoroughfares. The home features a functional layout with inviting living spaces, an enclosed front porch entryway, hardwood floors, and natural light. The bathroom has recently been renovated to add counter space and a new bathtub with a beautiful tile surround. Enjoy outdoor living with more than two acres to play, garden, and live a bit of a country lifestyle right in the heart of Duluth! Last, but certainly not least, is the heated three stall garage with ample room for vehicles, workspace, and all of your outdoor toys and equipment. This is a wonderful opportunity to own a property that offers both tranquility and accessibility. Come see it for yourself!
| DAYS ON MARKET | 1 | LAST UPDATED | 12/17/2025 |
|---|---|---|---|
| YEAR BUILT | 1900 | COMMUNITY | LSAR |
| GARAGE SPACES | 4.0 | COUNTY | St. Louis County |
| STATUS | Active | PROPERTY TYPE(S) | Single Family |
| ADDITIONAL DETAILS | |
| AIR | None |
|---|---|
| AIR CONDITIONING | Yes |
| APPLIANCES | Dishwasher, Dryer, Microwave, Range, Refrigerator, Washer |
| AREA | LSAR |
| BASEMENT | Full, Yes |
| GARAGE | Yes |
| HEAT | Forced Air, Natural Gas |
| INTERIOR | Master Downstairs |
| LOT | 2.83 acre(s) |
| LOT DIMENSIONS | 165x642 |
| PARKING | Asphalt, Detached |
| SEWER | Public Sewer |
| STORIES | 2 |
| STYLE | Traditional |
| TAXES | 3819 |
| UTILITIES | Cable Available |
| WATER | Public |
MORTGAGE CALCULATOR
TOTAL MONTHLY PAYMENT
0
P
I
*Estimate only
| SATELLITE VIEW |
| / | |
We respect your online privacy and will never spam you. By submitting this form with your telephone number
you are consenting for Real Estate Services
of Duluth to contact you even if your name is on a Federal or State
"Do not call List".
Listed with Century 21 Atwood
Information is supplied by seller and other third parties and has not been verified. Open House information is subject to change without notice.
Copyright 2025 – Duluth Area Association of REALTORS® MLS – All Rights Reserved.
This IDX solution is (c) Diverse Solutions 2025.

