4108 Fayre Rd, Duluth, MN 55803 (MLS # 6123166)
|
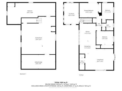
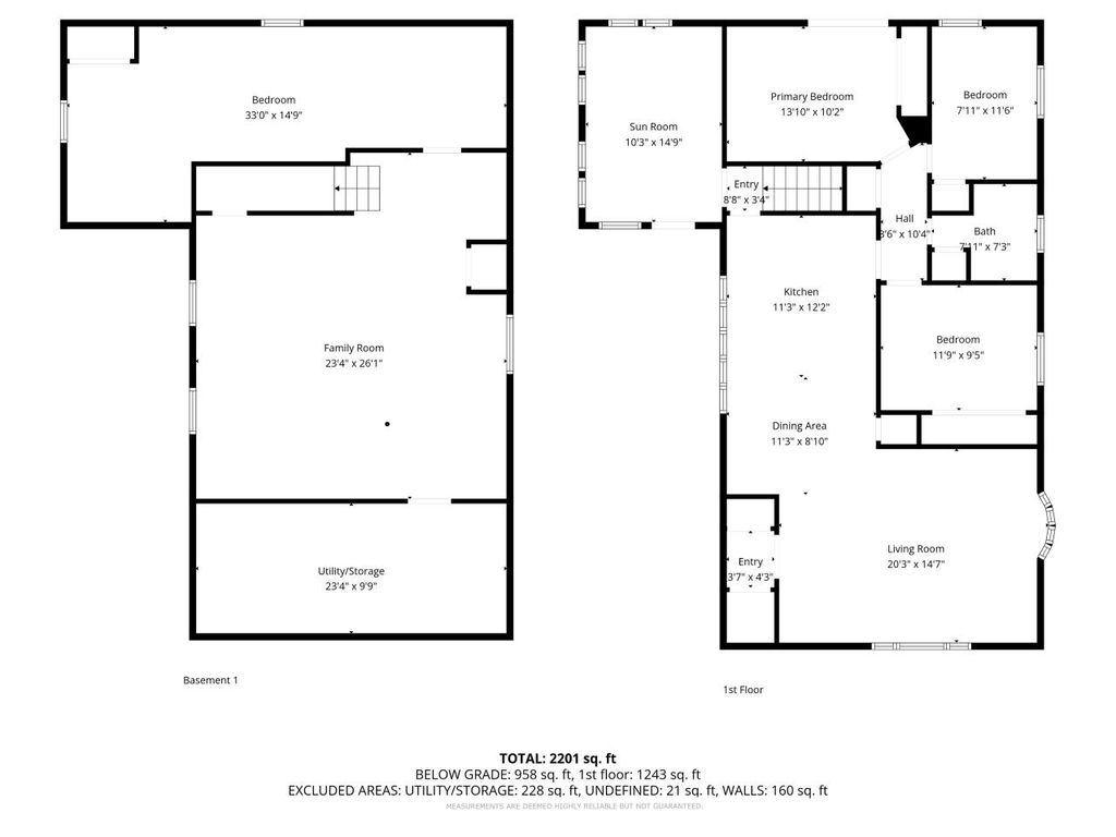
Calling all investors, renovators, and handy homeowners! This spacious 4-bedroom, 1-bath home sits on 1.52 acres on the edge of Duluth, offering a rare blend of country privacy with city conveniences. Ideally located near Ridgeview Golf Course, Hartley Park, and Homecroft Elementary, this property delivers both lifestyle and long-term potential. The home features over 1,300 square feet per level, providing a generous footprint to reimagine and add value. While the home is currently livable, it is dated and ready for updates, most notably flooring and some windows to maximize its potential. Roof age(s) are unknown. Sellers are in the process of connecting to city sewer, a significant improvement already underway. Outside, the property truly offers so much...enjoy a beautiful, private yard with a small apple orchard, private well, ideal for gardening and multiple outbuildings. The two detached garages offer space for 6+ vehicles, along with a lean-to, dog kennel, carport and room for a workshop, storage, hobbies, or equipment"”perfect for contractors or anyone needing extra space. With city-maintained paved roads and an after-repair value estimated over $400,000, this is a standout opportunity for those willing to invest time and vision. A peaceful slice of country living with the convenience of town, properties like this don't come along often.
| DAYS ON MARKET | 54 | LAST UPDATED | 1/28/2026 |
|---|---|---|---|
| YEAR BUILT | 1979 | COMMUNITY | LSAR |
| GARAGE SPACES | 6.0 | COUNTY | St. Louis County |
| STATUS | Pending | PROPERTY TYPE(S) | Single Family |
| ADDITIONAL DETAILS | |
| APPLIANCES | Range, Refrigerator |
|---|---|
| AREA | LSAR |
| BASEMENT | Full, Yes |
| CONSTRUCTION | Block, Concrete, Stucco |
| GARAGE | Yes |
| HEAT | Forced Air, Oil |
| INTERIOR | Master Downstairs |
| LOT | 1.52 acre(s) |
| LOT DIMENSIONS | 328 X 202 |
| PARKING | Off Street, Gravel, Detached |
| SEWER | Public Sewer |
| STORIES | 1 |
| STYLE | Ranch |
| TAXES | 2437 |
| WATER | Private, Well |
MORTGAGE CALCULATOR
TOTAL MONTHLY PAYMENT
0
P
I
*Estimate only
| SATELLITE VIEW |
| / | |
We respect your online privacy and will never spam you. By submitting this form with your telephone number
you are consenting for Real Estate Services
of Duluth to contact you even if your name is on a Federal or State
"Do not call List".
Listed with Messina & Associates Real Estate
Information is supplied by seller and other third parties and has not been verified. Open House information is subject to change without notice.
Copyright 2026 – Duluth Area Association of REALTORS® MLS – All Rights Reserved.
This IDX solution is (c) Diverse Solutions 2026.

